无障碍版
揭阳市金润达实业有限公司“厂房及配套设施(二期)”建设工程规划许可事项批前公示
来源:本网 发布时间:2022-03-18 17:18 浏览次数:- 【字体: 分享到:


揭阳市金润达实业有限公司“厂房及配套设施(二期)”建设工程规划许可事项批前公示


揭市自然资建公示[2022]07号


  根据《广东省城乡规划条例》第二十九条规定,现将我局受理的建设工程规划许可申请事项进行批前公示:

  一、建设单位

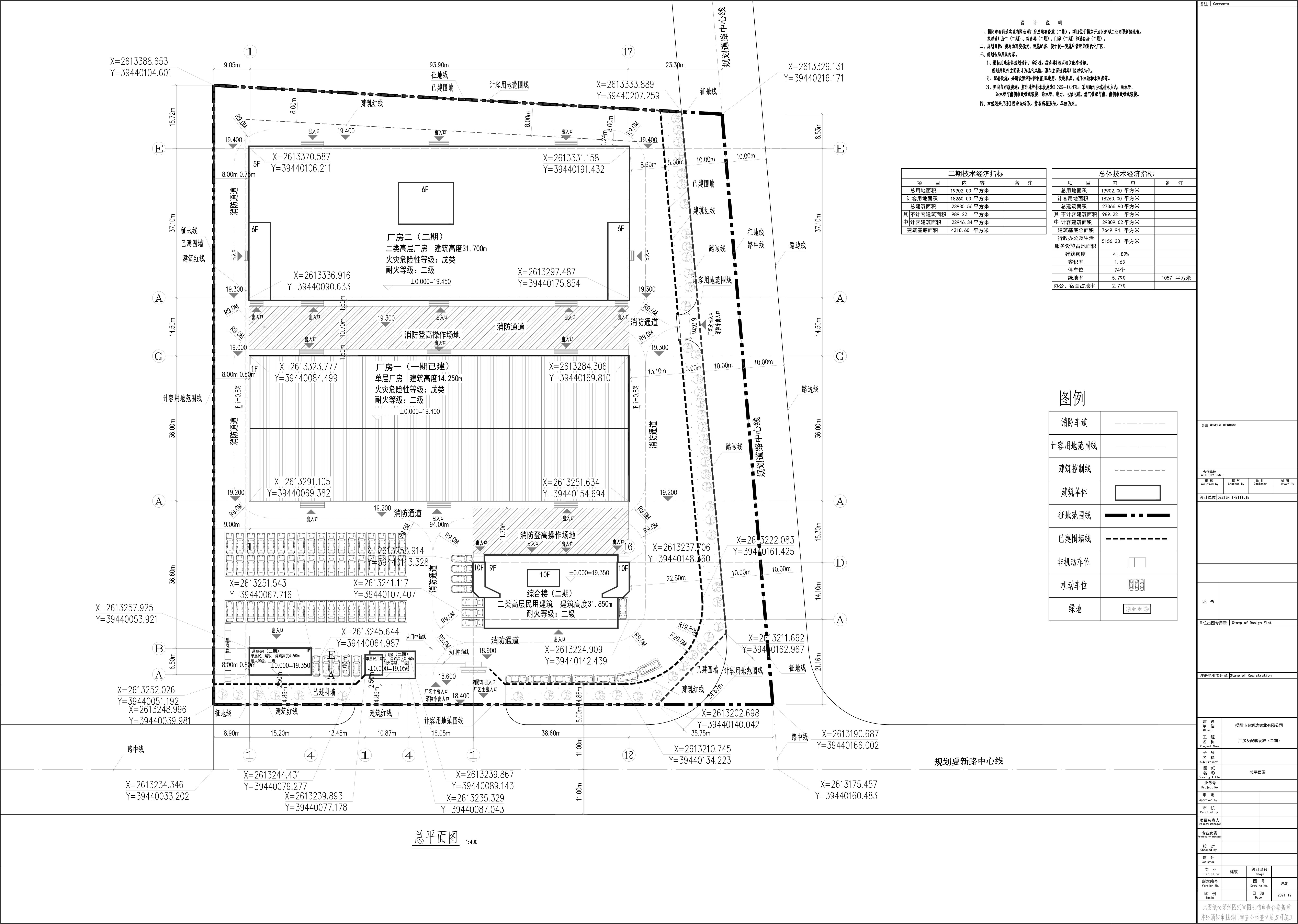
  揭阳市金润达实业有限公司

  二、项目名称

  厂房及配套设施(二期)

  三、建设位置

  揭东开发区新型工业园夏新路北侧

  四、项目规模

  项目建筑4栋,建筑层数地上1~9层、地下1层,总建筑面积23935.56㎡。

  该项目公示期为2022年3月18日至2022年3月27日。如对该项目规划建设有异议,请在公示期内向我局反馈意见(采用书面形式,个人的反馈意见应由本人亲笔签名并附身份证复印件,单位的反馈意见应由法人代表及单位签章,反馈意见应写明有效的联系方式),并提供公示事项与其有利害关系的证明。

  联系电话:0663-8220655     监督电话:0663-8256261

  联系地址:揭阳市榕城区揭阳大道东临江北路北揭阳市自然资源局

  附:揭阳市金润达实业有限公司“厂房及配套设施(二期)”总平面图



揭阳市自然资源局

2022年3月18日


相关阅读