无障碍版
“揭阳市高级技工学校(南校区)实训大楼项目”建设工程规划许可事项批前公示
来源:本网 发布时间:2021-02-23 09:26 浏览次数:- 【字体: 分享到:


“揭阳市高级技工学校(南校区)实训大楼项目”建设工程规划许可事项批前公示


揭市自然资建公示[2021]08号


  根据《广东省城乡规划条例》第二十九条规定,现将我局受理的建设工程规划许可申请事项进行批前公示:

  一、建设单位

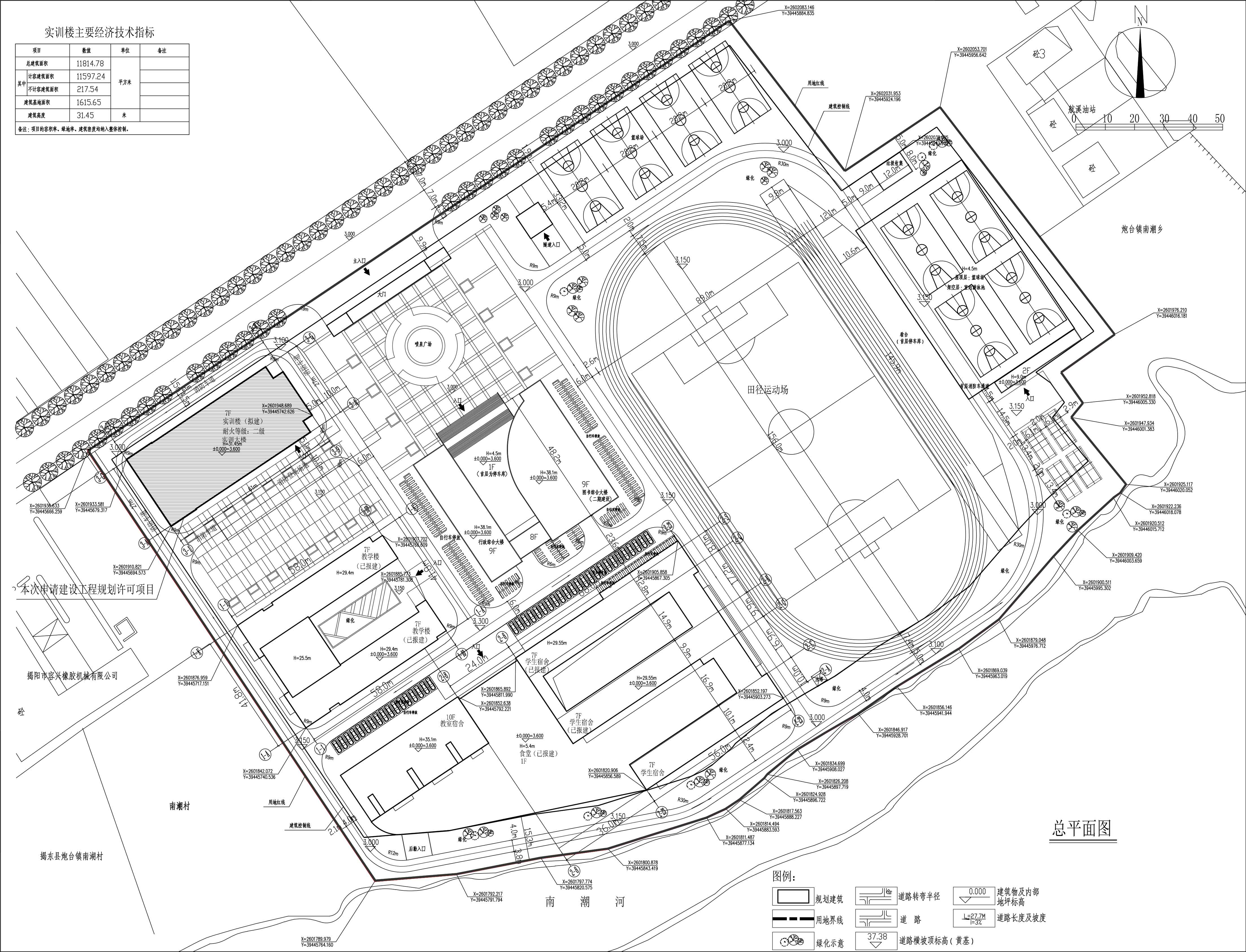
  广东省揭阳市高级技工学校

  二、项目名称

  揭阳市高级技工学校(南校区)实训大楼项目

  三、建设位置

  空港经济区炮台镇南潮村路口

  四、项目规模

  项目主体建筑1栋,建筑层数7层,总建筑面积11814.78㎡。

  该项目公示期为2021年2月23日至2021年3月4日。如对该项目规划建设有异议,请在公示期内向我局反馈意见(采用书面形式,个人的反馈意见应由本人亲笔签名并附身份证复印件,单位的反馈意见应由法人代表及单位签章,反馈意见应写明有效的联系方式),并提供公示事项与其有利害关系的证明。

  联系电话:0663-8220655     监督电话:0663-8256261

  联系地址:揭阳市榕城区揭阳大道东临江北路北揭阳市自然资源局

  附:“揭阳市高级技工学校(南校区)实训大楼项目”总平面图



揭阳市自然资源局

2021年2月23日


相关阅读